Appartamento in Vendita a Milano
Classe energetica
EP glnr: 39.81 kwh/m²
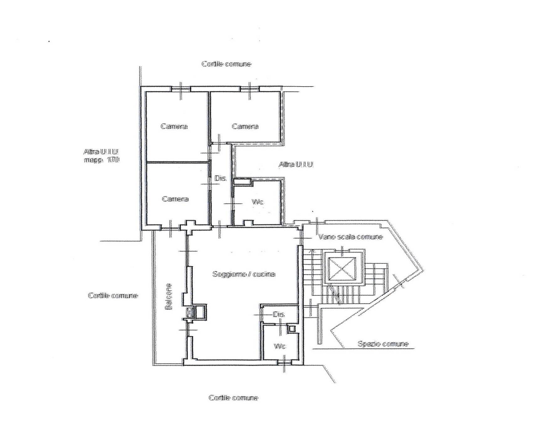
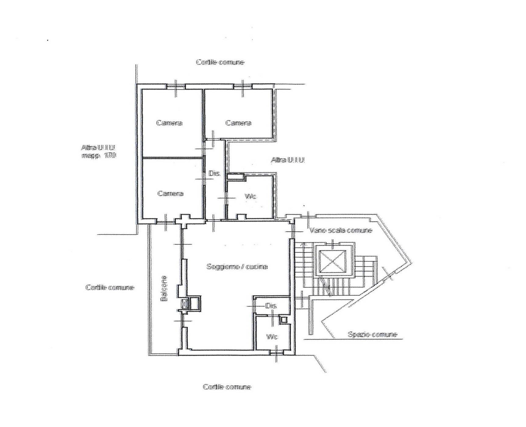
PROPONIAMO Appartamento ELEGANTE E COMODO, 4 LOCALI DISPOSTO SU UNICO LIVELLO COMPOSTO DA INGRESSO, SOGGIORNO CON USCITA SU BALCONE, ANGOLO COTTURA CON USCITA SU BALCONE, BAGNO DI SERVIZIO PER OSPITI, ANTICAMENRA, PRIMA CAMERETTA CON USCITA SU BALCONE, SECONDA CAMERETTA, CAMERA MATRIMONIALE E SECONDO BAGNO.
AMPIO BOX CON SOPPALCO AL PIANO S1 E CANTINA AL P.T. COMPLETANO L'UNITA' IMMOBILIARE.
IL COMPLESSO IN CUI SI TROVA L'IMMOBILE E' FORMATO DA 6 PALAZZINE OGNUNA CON IL SUO INGRESSO PEDONALE. MENTRE INGRESSO ED USCITA CARRAIO CHE PORTA AI BOX E' IN COMUNE.
Appartamento TERMOAUTONOMO, ACCESSORIATO CON CLIMATIZZATORE NELLA ZONA GIORNO E TENDE SOLARI SUL BALCONE.
L'IMMOBILE E' STATO OGGETTO DI SUPERBONUS 110, CAPPOTTO, CALDAIA E INFISSI DI NUOVA GENERAZIONE SONO PRATICAMENTE NUOVI ISTALLATI NEL 2024.
L'Appartamento VISTA LA COMODITA' DEI MEZZI PER MUOVERSI SU Milano IN PRIMIS NUOVA METRO SAN CRISTOFORO A 750MT CIRCA 5 MIN A PIEDI, OLTRE A LINEA 14 DEI TRAM PRATICAMENTE FUORI CASA, SUPERMERCATI RAGGIUNGIBILI A PIEDI COME CONAD ED ESSELUNGA E NEGOZI DI VARIO GENERE NE FANNO UNA ZONA SERVITA E VISTO LE 3 CAMERE ED I DOPPI SERVIZI PUO' ESSERE ACQUISTATO E MESSO A REDDITO COME Appartamento COMUNE PER ALMENO 3 STUDENTI O TIROCINANTI.
DIRITTTO DI SUPERFICIE L'IMMOBILE OGGETTO DI CONVENZIONE E' IN DIRITTO DI SUPERFICIE SINO AL 2079, IL RISCATTO DEL TERRENO E' OGGETTO DI VALUTAZIONE DELL'AMMINISTRATORE CHE APPENA POSSIBILE PROPORRA' AI CONDOMINI I TEMPI ED I COSTI.
Contattaci
Arlunese immobiliare sas
via don Rozzoni 6
Arluno (MI)
Telefono 0290379363
arluno@arluneseimmobiliare.com
Immobili simili
Ultimo aggiornamento 28-04-2026


























































